Trevlig 1-plansvilla med källare på hörntomt i lugnt och omtyckt läge i Järpen!
- Småhus
- Villa
- Blåbärsstigen 11
- 6 rum
- 112 kvm
- Byggår 1978
I ett stillsamt och omtyckt område i Järpen erbjuds nu denna hemtrevliga 1-plansvilla med källare och vidbyggt garage – ett praktiskt och välplanerat boende med närhet till elljusspår, natur och fina promenadstråk.
Entréplanet rymmer en välkomnande hall som leder vidare till ett stort och trivsamt kök med gott om arbetsytor och plats för matbord. Vardagsrummet erbjuder generösa sällskapsytor och fint ljusinsläpp. Här finns även tre sovrum i bra storlek samt badrum – en funktionell planlösning som passar såväl barnfamiljen som den som önskar arbetsrum eller gästrum.
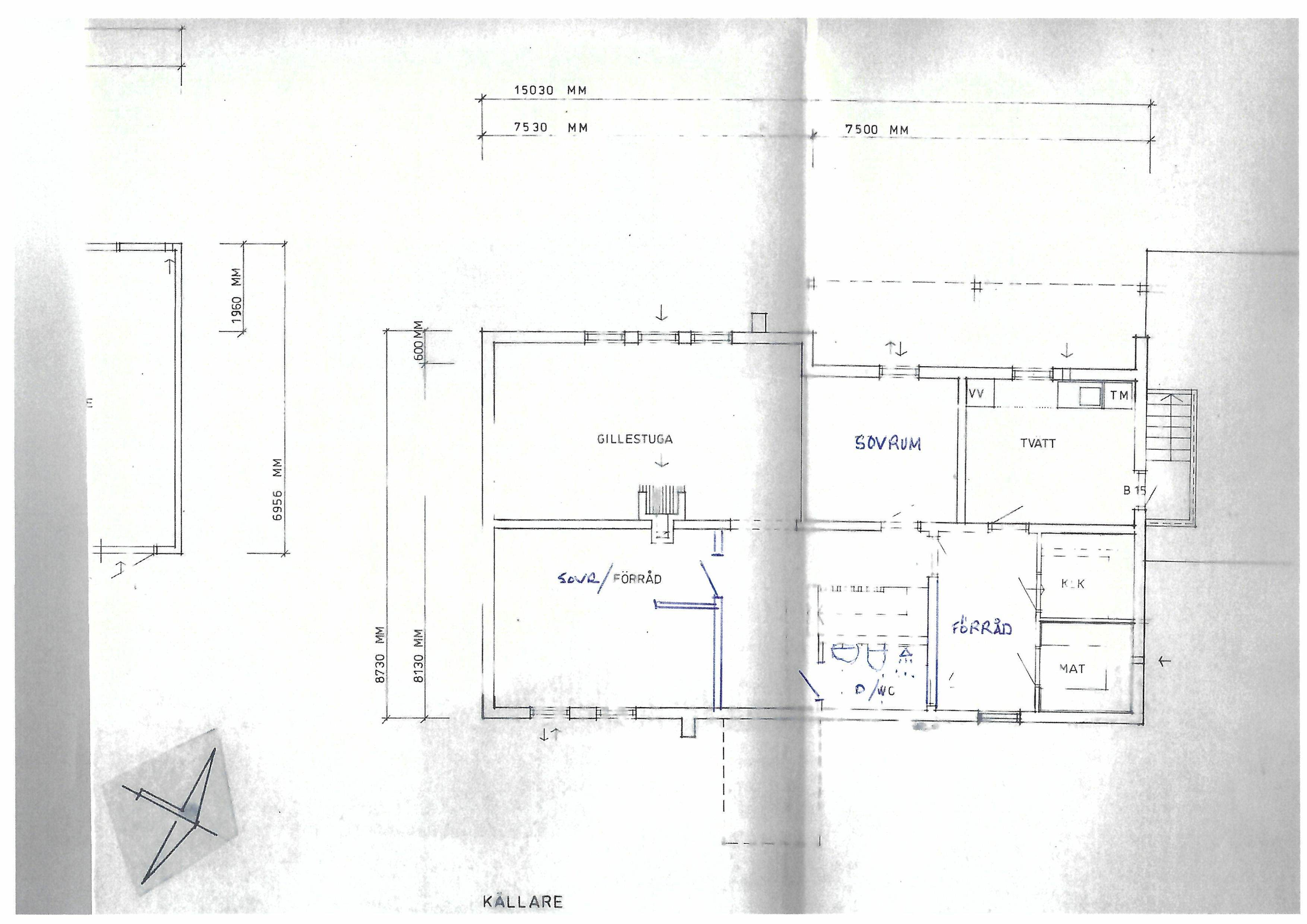
Källarplanet ger extra utrymme och flexibilitet. Här finns en rymlig gillestuga med murad spis som skapar en varm och inbjudande känsla – perfekt för mysiga kvällar eller sociala tillställningar. Vidare finns sovrum, gästrum, tvättstuga, dusch och wc, förråd samt praktisk matkällare. Från källaren nås även det vidbyggda garaget via invändig trappa, vilket är särskilt uppskattat under vinterhalvåret.
Huset har 3-glasfönster som byttes 2012/2013, vilket bidrar till bättre energiprestanda och komfort.
Här bor du i ett lugnt och trivsamt kvarter med närhet till både natur och service – ett hem med gott om plats och många möjligheter.
Fastigheten säljs av juridisk person. Säljaren har inte bebott fastigheten och lämnar därför endast begränsade upplysningar om dess skick.
Säljaren åberopar en generell friskrivning avseende fastighetens skick. Detta innebär att köparen övertar fastigheten i befintligt skick och att säljaren friskriver sig från ansvar för dolda fel.
Köparen uppmanas att noggrant undersöka fastigheten före köp samt att vid behov anlita sakkunnig.
| 2 150 000 kr | 2026-05-18 | 17:20 | 1 |
Fastighetsmäklare
Bilder
Planritning
INTRESSEANMÄLAN
Fyll i dina uppgifter för att lämna din intresseanmälan på denna bostad





